Software: CAD - Tutorial - Formstabilitaet - Zeichnungsansichten
Wir müssen von der Ventilhälfte die vollständig bemaßte Bauteil-Zeichnung (Ventil_xx.idw) mit den erforderlichen Ansichten erstellen. Dafür benutzen wir die in der vorherigen Übung erstellte Vorlage-Datei. Der Anspruch, möglichst alle Informationen direkt aus dem CAD-Modell zu übernehmen, ist dabei gar nicht so einfach realisierbar!
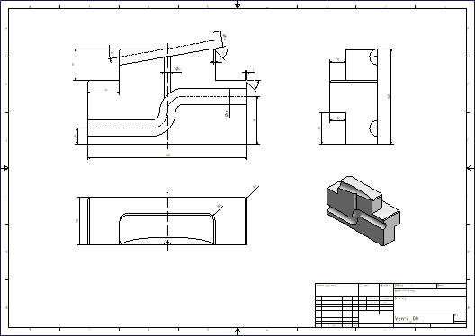
Blatt-Format und Ansichten
- Ein A4-Blatt im Hochformat ist für die Ventil-Hälfte nicht ausreichend. Wir wählen das A2-Querformat.
- Neben der Ansicht von vorn (Schnittfläche der Ventil-Hälfte) sind noch zwei weitere Ansichten erforderlich (z.B. von links und von oben). Der Maßstab 2:1 sorgt für Übersichtlichkeit.

Symmetrie-Linien des Rohteils
- Die Symmetrie des Grundkörpers wird durch "Einschließen" der Z- bzw. Y-Achse gekennzeichnet.
- Die Koordinaten-Achsen werden erst nach ihrem "Einschließen" in die Zeichnungsansichten eingelendet.
- Somit war es günstig, die Z-Richtung als nach oben zu betrachten. Dies vermeidet
Irrtümer bei der Wahl der richtigen Koordinaten-Achse (zumindest für die Höhe).
Mittel-Linie des Sweeping-Pfades
- Infolge der beiden Bögen innerhalb des Sweeping-Pfades ist es nicht möglich, auf Basis von zusätzlichen Arbeitsachsen eine durchgängige Mittel-Linie in der Zeichnung abzurufen.
- Wir werden deshalb doch die Funktion "Symmetrielinie"
des Zeichnungskommentars benutzen. Damit gelingt es abschnittsweise, die komplette gekrümmte Durchführung mit einer Mittel-Linie zu versehen:
- Von entscheidendem Vorteil ist dabei, dass bei Maßänderungen eine automatische Längenanpassung der Liniensegmente erfolgt!
- Etwas unschön sind die Überlappungen der einzelnen Segmente, aber damit kann wahrscheinlich leben.

Mittel-Linien der Bohrungen
- Die Mittel-Linie der senkrechten Bohrung wird bereits durch die senkrechte Symmetrieachse realisiert.
- Für die schräge Bohrung kann man die Mittel-Linie abrufen. Ab der Inventor-Version 2012 gelingt dies anscheinend zuverlässig. Im speziellen Fall könnten wir bei einem Mißerfolg auf die Übernahme der Arbeitsachse ausweichen. Eine Symmetrie-Linie wie in der gekrümmten Durchführung, ist in Ermangelung der zweiten Kante nicht realisierbar.
- Das Mittelpunktmarkierung
ist für die Durchgangsöffnung in der Seitenansicht einfach als Zeichnungskommentar zu realisieren. - Beim Ausgang der schrägen Bohrung handelt es sich um die Hälfte eine Ellipse. Auch diese ist durch eine Mittelpunktmarkierungen zu kennzeichnen. Der Halbmond in dieser Öffnung repräsentiert das obere Ende der senkrechten Bohrung. Dafür sollte man auf eine Mittelpunktmarkierung verzichten.
Bemaßung
Modellbemaßung
Verwendet werden soll nach Möglichkeit nur die Modellbemaßung. Zwei Typen von Maßen kann man jedoch nicht als Modellbemaßung in Zeichnungsansichten übernehmen:
- Winkel bzw. Abstände zwischen Arbeitselementen (hier: Neigung der Lagerschale).
- Maße, die sich aus geometrischen Abhängigkeiten ergeben (hier: Öffnungsmittelpunkte der gekrümmten Durchführungen).
- Abhängige Maße könnte man zwar in die Modellskizzen eintragen und auch als Modellbemaßung in die Zeichnung übernehmen. Aber sie werden in runden Klammern notiert, was nicht der Zeichnungsnorm entspricht.
- Da man die Werte abhängiger Maße nicht ändern kann, macht ihre Verwendung als Modellbemaßung in der Zeichnung auch keinen Sinn!
Die folgenden Maße sollte man unbedingt als Modellbemaßung in die Zeichnung überführen. Dabei kann sich die Platzierung der einzelnen Maße unterscheiden, solange sie sinnvoll ist:
- Bei Bedarf muss man einzelne Maße zwischen den Zeichungsansichten verschieben.
- Im Beispiel wurde nachträglich noch eine Skizzenbemaßung im Modell geändert, um die 20 mm Breite der Aussparung am Rohteil wegen der Übersichtlichkeit von der rechten auf die linke Seite der Zeichnungsansicht zu platzieren (Siehe folgendes Bild).
- Die Maßhilfslinien sollten an sinnvollen Körperkanten enden.
- Achtung: Teilnehmer der Lehrveranstaltung erhalten 1/2 Punkt Abzug pro fehlendem Modellmaß!
Im Beispiel wurden die Fasen mit Modellbemaßung versehen:
- Das hat den Vorteil, dass man aus der Zeichnung heraus die Fasen ändern kann.
- Bei vielen und kleineren Fasen wird dies jedoch unübersichtlich.
- Im Normalfall werden Fasenbreite und -winkel zu einem Maß zusammengefasst.
- Sind alle Fasen gleich, so kennzeichnet man das global für das Zeichnungsblatt mit einem Textkommentar. Die einzelne Fase bleibt dann unbemaßt.
Zeichnungsbemaßung
Die nicht mittels Modellbemaßung realisierbare Bemaßung muss abschließend als Zeichnungsbemaßung erzeugt werden:
- Neigungswinkel der Lagerschale zwischen Mittellinie und Ventilkante.
- Mittelpunkte der Öffnungen des gekrümmten Durchbruchs.
Erläuternde Ansichten
Insbesondere bei komplexen Teilen ist es für die Mitarbeiter in der Fertigung sehr günstig, wenn z.B. das gesamte Teil in einer isometrischen Darstellung in gerendeter Form in einer separaten "Erstansicht" abgebildet wird. Damit vermindert man das Risiko von Fehlinterpretationen zur Form des Bauteils:
Schriftfeld
Analog zur Vorgehensweise der ersten Übung ist das Schriftfeld komplett mit den erforderlichen Werten der iProperties aus der Zeichnungsdatei .idw und der Modelldatei .ipt auszufüllen. Dazu sollte man zuvor noch ein sinnvolles Material für die Fertigung eines Prototypen der Ventilhälfte wählen.




